-
Jovian Lim
Bayangkan saja hunian vertikal di kota padat seperti Singapura tetap bisa menghadirkan kedekatan dengan alam tanpa harus memiliki halaman luas. Sebuah flat keluarga di kawasan Hougang menjadi bukti bahwa desain yang peka terhadap konteks lokal dan gaya hidup penghuni mampu mengubah apartemen biasa menjadi ruang tinggal bernuansa taman yang hidup, hangat, dan menenangkan. Renovasi ini tidak hanya memperbaiki tampilan interior, tetapi juga mengubah cara penghuni berinteraksi dengan ruang dan lingkungannya.
Flat ini dirancang ulang untuk pasangan yang memiliki kecintaan besar terhadap tanaman. Alih-alih menjadikan tanaman sekadar dekorasi tambahan, proyek ini justru menempatkan vegetasi sebagai elemen utama yang membentuk konsep desain secara keseluruhan. Hasilnya adalah hunian urban yang terasa hijau, lapang, dan sangat personal.
Konsep Taman dalam Rumah yang Kontekstual

Jovian Lim
Gagasan utama dari renovasi ini berangkat dari elemen yang akrab dengan ruang hijau kota Singapura, yaitu bata double bullnose. Bata dengan sudut membulat ini lazim ditemukan di bangku taman, jalur pejalan kaki, dan area publik luar ruang. Dalam proyek ini, material tersebut dibawa masuk ke interior sebagai elemen arsitektural utama.

Jovian Lim
Penggunaan bata tidak hanya bersifat dekoratif. Material ini dipilih karena ketahanannya terhadap iklim tropis, sifatnya yang tahan api, serta kemampuannya menghadirkan tekstur alami yang hangat. Warna terracotta bata memperkuat kesan membumi dan menjadi pengikat visual antar ruang di dalam rumah.
Dengan memanfaatkan material yang identik dengan lanskap kota, interior flat ini terasa kontekstual dan memiliki karakter lokal yang kuat. Rumah tidak tampil sebagai ruang tertutup yang terlepas dari lingkungan sekitarnya, melainkan sebagai perpanjangan dari ruang hijau kota.
Baca juga Unik! Apartemen di Brasil Kenangan yang Hangat & Nyaman
Perombakan Tata Ruang yang Lebih Terbuka

L Architects
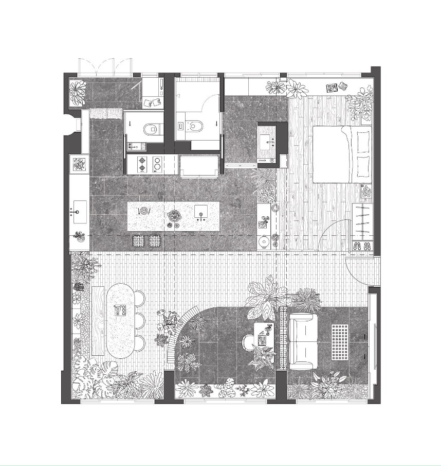
Sebelum renovasi, flat ini memiliki tiga kamar tidur terpisah dengan pembagian ruang yang konvensional. Tata ruang tersebut dinilai kurang sesuai dengan gaya hidup penghuni yang lebih banyak beraktivitas bersama dan gemar merawat tanaman.
Sebagian besar dinding internal kemudian dibongkar untuk menciptakan denah terbuka. Kini, hunian ini hanya mempertahankan satu kamar tidur utama yang privat, sementara fungsi lainnya seperti ruang tamu, ruang makan, dapur, dan area kerja dirangkai dalam satu ruang besar yang saling terhubung.

L Architects
Pembagian zona tidak lagi mengandalkan dinding masif, melainkan partisi bata berlubang. Elemen ini memungkinkan cahaya dan udara tetap mengalir, sekaligus memberi batas visual yang lembut antar area. Pendekatan ini membuat ruang terasa luas namun tetap terstruktur.
Bata Lengkung sebagai Elemen Multiguna

Jovian Lim
Keunikan utama interior ini terletak pada cara bata double bullnose digunakan secara kreatif dan fungsional. Bata tidak hanya tampil sebagai dinding, tetapi juga membentuk furnitur built in seperti kursi melengkung di area makan dan kerja, dasar kitchen island, serta elemen pemisah ruang.

Jovian Lim
Bangku bata yang memanjang dan melengkung menghadirkan fleksibilitas penggunaan. Area ini dapat berfungsi sebagai tempat bekerja, membaca, atau sekadar duduk santai sambil merawat tanaman. Sudut membulat bata menciptakan kesan ramah dan organik, menghindari rasa kaku yang sering muncul pada interior urban.
Perpaduan antara bata dengan furnitur kayu dan palet warna netral menghasilkan suasana hangat yang mendukung aktivitas sehari hari tanpa terasa berlebihan.
Baca juga Sensasi Baru! Klub Golf Indoor Bergaya Mewah di Montréal
Material Alami dan Alur Ruang yang Lembut

Jovian Lim
Pilihan material lain turut memperkuat konsep taman dalam rumah. Lantai terracotta digunakan di area utama untuk menghadirkan kesan jalur setapak taman. Di beberapa zona, lantai berganti menjadi ubin berwarna lebih gelap untuk menandai peralihan fungsi ruang secara halus.

Jovian Lim
Pintu kaca dan bukaan besar dimanfaatkan untuk memaksimalkan cahaya alami. Solusi ini penting tidak hanya bagi kenyamanan penghuni, tetapi juga untuk mendukung pertumbuhan tanaman di dalam rumah. Ventilasi silang dirancang dengan cermat agar sirkulasi udara tetap optimal di iklim tropis.
Kamar tidur dirancang sederhana namun tetap konsisten dengan konsep keseluruhan. Pintu kaca membantu membawa cahaya masuk, sementara elemen kisi memberikan privasi tanpa mengorbankan ventilasi.
Hunian Urban yang Hidup dan Berkelanjutan

Jovian Lim
Renovasi flat ini menunjukkan bahwa hunian perkotaan tidak harus terputus dari alam. Dengan pendekatan desain yang tepat, ruang terbatas dapat diubah menjadi tempat tinggal yang sehat, adaptif, dan penuh kehidupan.

Jovian Lim
Penggunaan material tahan lama, denah fleksibel, serta integrasi tanaman menjadikan rumah ini bukan hanya menarik secara visual, tetapi juga berkelanjutan untuk jangka panjang. Setiap keputusan desain berangkat dari kebutuhan nyata penghuni, bukan sekadar tren.
Baca juga Rahasia Elegan! 5 Manfaat Batu Marmer untuk Hunian Mewah

Jovian Lim
Bagi kota kota tropis dengan kepadatan tinggi, konsep seperti ini sangat relevan. Ia mengajarkan bahwa kualitas ruang tinggal tidak ditentukan oleh luas semata, melainkan oleh bagaimana ruang dirancang untuk mendukung kehidupan sehari hari.
Renovasi flat di Singapura ini menjadi contoh inspiratif bahwa desain yang sederhana, jujur, dan kontekstual mampu menciptakan hunian urban yang terasa seperti taman pribadi di tengah kota.
Sumber Teaser oleh Jovian Lim
-




