-
Designed by Nicholas Gurney / Katherine Lu
Denah rumah 6x6 menjadi salah satu pencarian populer bagi calon pemilik rumah pertama, terutama mereka yang memiliki lahan terbatas dan anggaran yang harus dikontrol ketat. Dengan luas bangunan hanya 36 meter persegi, rumah 6x6 menuntut perencanaan yang cermat agar tetap nyaman, fungsional, dan memungkinkan pengembangan di masa depan.
.jpg)
Le Petit Maison
Rumah 6x6 bukan berarti mungil dan sempit. Jika denah rumah dirancang dengan program ruang yang tepat serta perencanaan yang matang, justru pada ukuran inilah kualitas desain diuji, yaitu bagaimana memaksimalkan setiap meter tanpa membebani struktur dan biaya, sehingga bisa penuhi kebutuhan penghuni rumah dengan baik.
Baca juga, Mencari Gambar Rumah Biaya 15 juta? Simak Ini!
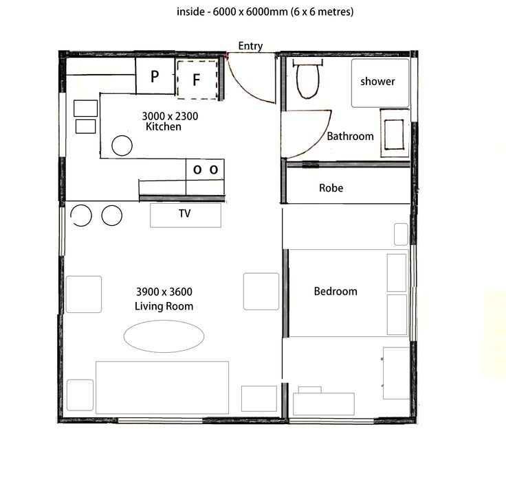
Denah rumah 6x6 dan biaya
Secara teknis, rumah 6x6 memiliki luas 36 m². Dengan asumsi biaya bangun rumah sederhana di kisaran 3–4 juta rupiah per meter persegi (tergantung daerah, material, dan sistem kerja), estimasi biaya pembangunan berada di rentang 108–144 juta rupiah untuk rumah permanen sederhana.
Baca juga, Desain Rumah 4x6 1 Kamar, Apakah Layak?
Namun angka ini bisa ditekan dengan strategi tertentu, seperti efisiensi di material finishing, menggunakan denah tanpa banyak sekat, atau proses membangun yang dilakukan secara bertahap. Denah yang boros koridor atau terlalu banyak dinding pembatas akan langsung menaikkan biaya struktur, dinding, dan atap. Oleh karena itu, rumah 6x6 sebaiknya menggunakan denah sederhana, minim sudut, dan alur ruang yang jelas.

Pinterest
Biaya juga sangat dipengaruhi oleh jenis pondasi, sistem rangka atap, serta pemilihan bukaan. Rumah kecil tetap membutuhkan pondasi yang benar agar aman secara struktur, terutama jika direncanakan untuk dikembangkan di kemudian hari. Selain itu, dimensi-dimensi pada jendela, pintu atau penggunakan material lainnya perlu diperhitungkan secara matang sehingga proses pembelian lebih cepat dengan membeli dari ukuran pabrikasi yang banyak tersedia serta tidak banyak material yang bersisa atau terbuang.
Rumah 6x6 Sederhana
Konsep rumah 6x6 sederhana bukan berarti asal murah, tetapi sederhana secara bentuk dan logika konstruksi. Bentuk denah paling efisien adalah persegi atau mendekati persegi, karena distribusi beban lebih merata dan penggunaan material lebih hemat. Sehingga titik struktur, seperti peletakkan pondasi, kolom hingga balok bisa diperhitungkan dengan lebih optimal. Karena pada proses pembangunan rumah, struktur rumah adalah salah satu elemen penting yang juga mempengaruhi keamanan hingga biaya pembangunan.
Baca juga, 6 Model Rumah Mungil Unik Trend Sekarang
Atap pelana sederhana atau atap satu arah sering dipilih karena lebih murah dan mudah dikerjakan. Dinding bisa menggunakan bata ringan atau batako, sementara finishing lantai dapat berupa keramik standar atau acian semen untuk menekan biaya awal.

Nicholas Gurne
Selain itu, yang tak kalah penting adalah peletakaan bukaan. Rumah sederhana yang baik tetap memperhatikan sirkulasi udara dan pencahayaan alami. Bukaan di dua sisi berlawanan sangat disarankan agar terjadi cross ventilation. Dengan cara ini, rumah akan jadi hunian yang sehat serta tetap nyaman tanpa bergantung pada pendingin udara dan lampu tambahan.
Desain rumah 6x6 1 kamar
Desain rumah 6x6 1 kamar adalah konfigurasi paling umum dan paling realistis. Umumnya, denah dibagi menjadi ruang tamu sekaligus ruang keluarga di bagian depan, satu kamar tidur di sisi atau belakang, serta dapur dan kamar mandi di area paling privat. Peletakkan ruang tentu perlu disesuaikan dengan kondisi lahan rumah, misalnya arah mata angin, kondisi jalan sekitar lahan serta preferensi privasi dari calon pemilik rumah.

Designed by Nicholas Gurne
Untuk efisiensi ruang, dinding kamar tidak perlu dibuat penuh hingga plafon, atau bisa menggunakan partisi ringan. Furnitur sebaiknya multifungsi, seperti meja lipat atau lemari tanam, agar ruang terasa lebih lega.
Pilihlah cat dinding, cat plafon hingga penutup lantai berwarna netral dan terang, seperti putih, krem atau abu. Hal ini, menjadi jurus jitu untuk memberikan efek lebih lapang. Selain itu, warna-warna ini cenderung lebih murah harganya di pasaran dengan pilihan berbagai merek yang hampir dipastikan memiliki pilihan warna ini. Dan tentu saja, warna netral ini memungkinkan untuk memadupadankan dengan berbagai karakter furnitur rumah.
Secara teknis, desain rumah 6x6 satu kamar idealnya menghindari lorong panjang. Setiap ruang harus langsung terhubung secara logis agar tidak ada area mati yang terbuang. Jika memungkinkan, sisakan sedikit ruang terbuka di belakang sebagai area cahaya dan penghawaan.

Katherine Lu
Denah rumah 6x6 bukan tentang mengejar banyak ruang, melainkan tentang ketepatan fungsi. Dengan perencanaan yang matang, rumah 6x6 ini bisa menjadi hunian awal yang layak, nyaman, dan siap berkembang seiring waktu.
Sumber foto teaser: Katherine Lu
-




