-
Moon House di Sydney / Katherine Lu
Dirancang oleh James Garvan Architecture, rumah serba putih ini mengambil inspirasi dari bangunan neoklasik dan rumah bergaya Federation yang mendominasi lingkungan sekitarnya, sekaligus menghadirkan interpretasi kontemporer yang segar dan relevan.

Interpretasi kontemporer yang segar dan relevan
Terletak di kawasan Waverley, Moon House dimiliki oleh pasangan muda yang baru memiliki bayi. Mereka menginginkan rumah dengan tata ruang yang lebih terbuka, mampu mengakomodasi pertumbuhan keluarga, serta nyaman untuk menerima kunjungan teman dan kerabat. Selain itu, suasana interior yang terang, lapang, dan terasa organik menjadi permintaan utama klien.
Baca juga, Sanctum House, Hunian Kontemplatif Karya Renesa

Tata ruang terbuka
Pada tahap awal proyek, ditemukan bahwa bangunan lama yang berasal dari awal abad ke 20 memiliki pondasi yang sudah tidak layak secara struktural. Keputusan pun diambil untuk membangun ulang rumah dari nol. Meski demikian, James Garvan Architecture tetap menjadikan karakter arsitektur lingkungan sekitar sebagai pijakan utama dalam perancangan.

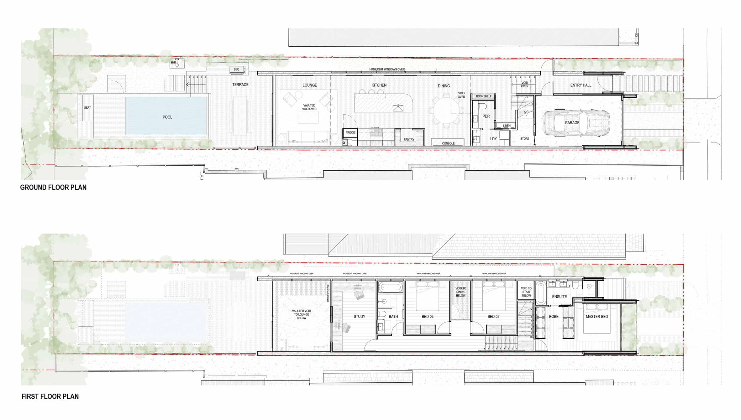
Denah Moon House
Secara komposisi, Moon House terdiri dari volume bata berbentuk persegi panjang yang sederhana. Dari massa utama ini, muncul tiga lengkungan besar berlapis seng yang menjadi elemen paling menonjol. Bentuk geometris bangunan bata merujuk pada kesederhanaan rumah neoklasik di sekitarnya, sementara lengkungan-lengkungan tersebut merupakan tafsir modern dari atap pelana curam khas rumah Federation era lama.
Baca juga, 2 Rumah Inspiratif Juara di Daikin Design Awards 2025

Fasad depan
Seluruh fasad dibalut warna putih bersih, menciptakan kesan ringan dan timeless. Satu-satunya kontras datang dari tanaman hijau yang menjuntai dari planter di tengah lengkungan terbesar, menambahkan elemen alami sekaligus melembutkan ekspresi arsitektur.


Lengkungan menghubungkan visual antara lantai dasar & lantai atas
Memasuki rumah, penghuni melewati koridor ramping yang mengarah ke area dapur dan ruang makan luas dengan furnitur built-in berlapis veneer kayu oak. Ruang ini kemudian berlanjut ke ruang keluarga dua lantai yang menjadi jantung rumah. Di area ini, langit-langit berbentuk barrel vault mempertegas tema lengkungan yang telah diperkenalkan di fasad. Salah satu lengkungan bahkan memuat jendela yang menghubungkan visual antara lantai dasar dan lantai atas.

Koridor ramping
Ruang keluarga memiliki pintu kaca geser besar yang terbuka langsung ke taman belakang dan area kolam renang. Menariknya, material lantai batu kapur berwarna terang digunakan secara konsisten dari interior hingga eksterior, menciptakan transisi ruang yang halus dan menyatu.

Pintu geser ke taman belakang
Pada fasad belakang, James Garvan Architecture menghadirkan lengkungan cekung yang dalam, seolah menjadi inversi dari ekspresi fasad depan. Pendekatan ini memperkaya pengalaman ruang sekaligus menjaga kesatuan bahasa desain.

Fasad belakang
Baca juga, Arsitek ini Ubah Garasi Lama Jadi Spot Arsitektur Sosial
Untuk mengurangi kesan massa bangunan, kamar tidur, kamar bayi, kamar mandi, dan ruang kerja ditempatkan setengah lantai lebih tinggi. Palet warna dan material yang tertahan tetap diterapkan, dengan dominasi putih dan furniture kayu oak, menjaga konsistensi visual sekaligus menciptakan suasana tenang.

Interpretasi modern di Moon House
Moon House menawarkan inspirasi tentang bagaimana merespons konteks sejarah tanpa terjebak pada imitasi. Proyek ini menunjukkan bahwa menghormati lingkungan sekitar dapat dilakukan melalui interpretasi bentuk, proporsi, dan material, menghasilkan hunian yang modern, fungsional, dan berakar pada tempatnya.
Sumber foto teaser: Katherine Lu
-




