-
Di sebuah jalan tenang di Finsbury Park, London, sebuah bekas garasi seluas hanya sekitar 38 meter persegi berhasil disulap menjadi ruang komunitas yang fungsional dan berwibawa. Stroud Green Housing Centre oleh Owain Williams Architects menunjukkan bahwa kekuatan arsitektur tidak ditentukan oleh ukuran, tetapi oleh ketepatan gagasan dan keterhubungan dengan konteks sosialnya.


Proyek ini lahir dari kebutuhan Stroud Green Housing Co-operative akan kantor permanen yang juga bisa berfungsi sebagai ruang drop-in bagi warga. Meskipun berskala kecil, bangunan ini dibentuk dengan cermat agar terasa lebih besar dari dimensi sebenarnya.


Fasad kayu berbasis timber cladding menyatu secara halus dengan tembok taman di sekitarnya, menampilkan estetika sederhana sekaligus menghadirkan kehangatan visual di lingkungan perumahan.

Masuk ke dalam, pengalaman ruang didesain untuk menjadi fleksibel dan ramah. Urutan sirkulasi dimulai dari gerbang besar yang membuka ke teras kecil, sebuah ambang antara publik dan privat yang berfungsi layaknya pintu gerbang sebuah bangunan sipil.

Langit-langit yang terangkat di tengah dengan clerestory windows mengundang cahaya alami merata ke seluruh ruang, sementara sun tunnel menambah sumber pencahayaan tanpa memperbesar panas matahari masuk.

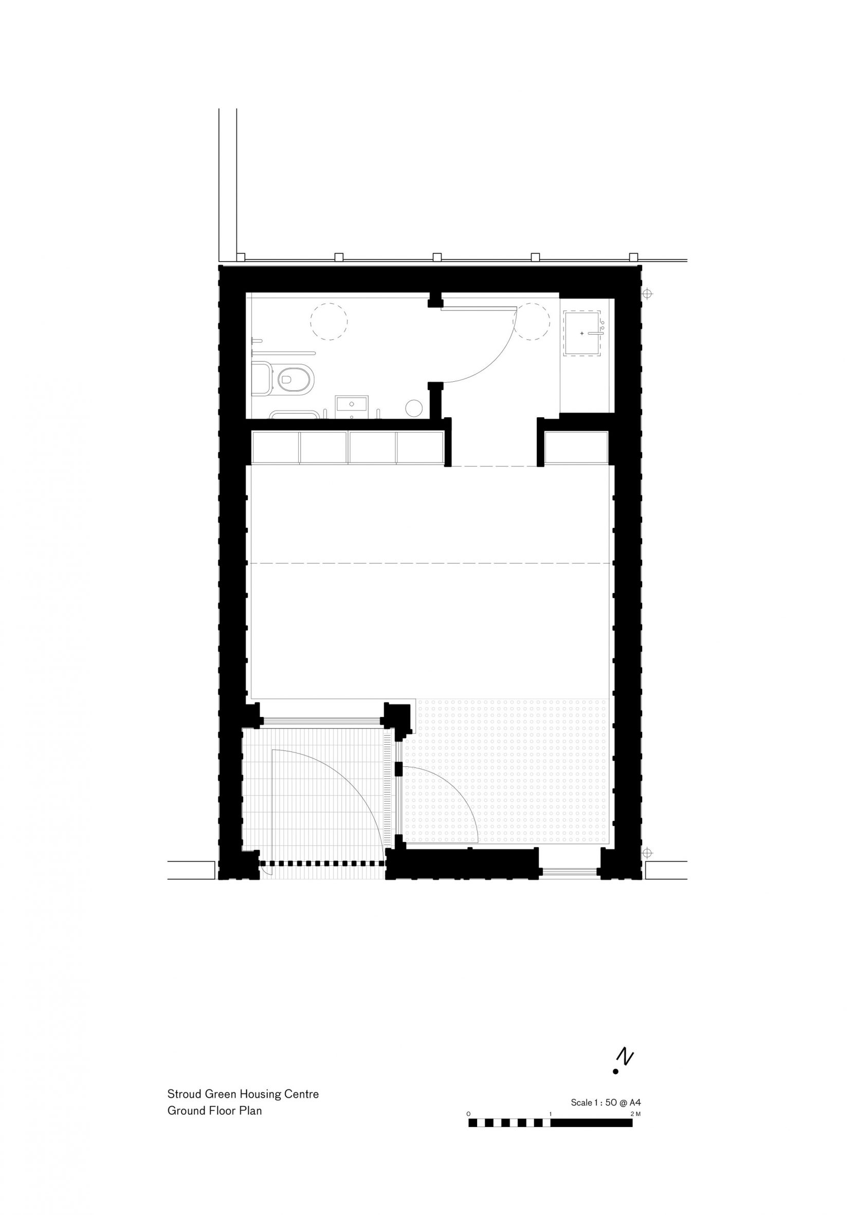
Interiornya sederhana namun penuh pertimbangan: lantai vinyl berwarna zonal membedakan fungsi area, dari ruang tunggu hingga meja kerja staf, kitchenette, hingga toilet yang dirancang inklusif.

Komitmen terhadap aksesibilitas terlihat dari pintu masuk yang rata dengan trotoar, serta alokasi sekitar 15 % dari luas lantai untuk area toilet yang nyaman bagi pengguna dengan kebutuhan khusus.
Sumber foto: Owain Williams Architects / French + Tye
-




